Введите код с картинки
Вашему вниманию представляем квартиру 1+1, площадью 63 м2 в районе Махмутлар на стадии строительства. Окончание строительства 30.09.2023 года. Жилой дом расположен в 550 метрах до Средиземного моря.
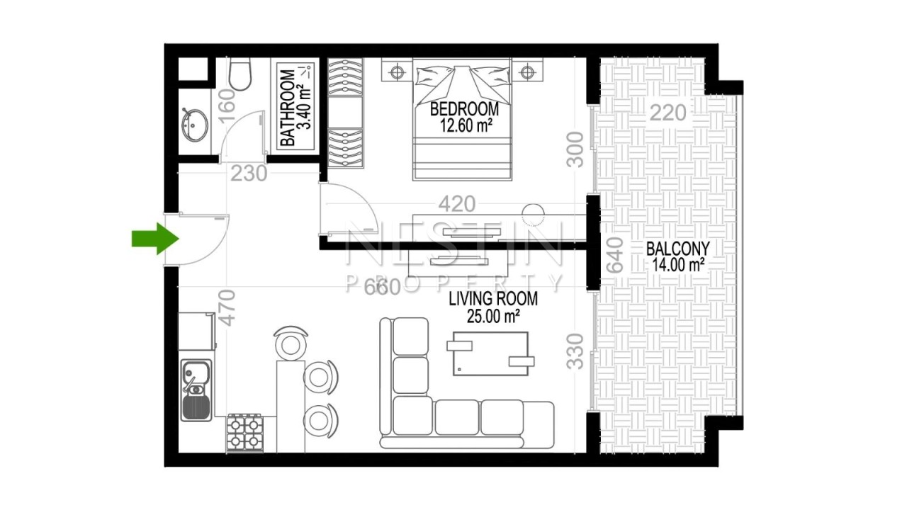
Квартира расположена на 1 этаже, планировка квартиры включает гостиную комнату с кухней открытого типа, спальню, ванную комнату и балкон. Квартира предлагается к продаже без мебели. На территории жилого дома есть открытый и закрытый бассейн, детский бассейн, детская площадка, фитнес, сауна, паровая и соляная комнаты, охрана, парковка, шахматы, волейбольная и теннисная площадки, зеленый сад.
Махмутлар это один из самых популярных и очень востребованных районов Аланьи. Именно здесь живет и отдыхает большая часть русскоязычного населения побережья Аланьи. Как и все новые районы, за последнее время Махмутлар очень стремительно растет и развивается. Даже за прошедшие 10 лет Махмутлар изменился до неузнаваемости. Здесь построили свои жилые комплексы все самые крупные застройщики города, что само по себе говорит о качестве предлагаемой недвижимости. Пока здесь еще можно найти участки земли на первой линии от моря, или в непосредственной близости, что очень ценится владельцами квартир. А также, активно проходит программа реновации старого жилого фонда, и крупные девелоперские компании с удовольствием выкупают старое жилье у моря.
Покупатели, рассматривающие для себя приобретение недвижимости в Турции, первым делом спрашивают А сколько метров от дома до пляжа? Иногда это единственное требование – красивый вид из окна на Средиземное море!
Учитывая, что район стремительно растет, увеличивается и городская инфраструктура. В Махмутларе обилие магазинов, ресторанов, кафе и кондитерских на любой вкус. Жизнь здесь не замирает даже в зимний период, когда пустеют отели и уезжают большинство туристов. Вы всегда купите свежие продукты на фермерском рынке по вторникам и субботам, сможете пойти на шоппинг в крупные сетевые супермаркеты типа Migros, Şok, BİM, A 101, Seç Market (они всегда только в шаговой доступности от вашего дома). На центральном проспекте Барбаросса есть большой выбор магазинов одежды, мебели, бытовой техники, лавки с натуральной косметикой и пряностями. И, конечно, множество парикмахерских от элитных салонов красоты до простеньких лавочек для мужчин, где можно побриться, это очень важно для местного населения.
Что еще очень важно, вы можете выбрать недвижимость на любой бюджет, и это очень ценят покупатели. И, в то же время, именно здесь построены самые роскошные и дорогие резиденции, с наличием отельной инфраструктуры, на больших земельных участках, что практически невозможно в центре Аланьи.
У Махмутлара очень высокий арендный потенциал, следовательно, это прекрасная инвестиция в недвижимость и хороший доход. Учитывая, что почти все комплексы очень близко к морю, а рядом с домом все необходимое, ваша новая квартира никогда не будет пустовать. Хорошая транспортная развязка по всем центральным улицам позволяет доехать в центр Аланьи максимум за 30 минут, и вы с удовольствием попадете на красивую набережную, в старинную крепость Кале, или на шоппинг во всех центральных бутиках города.
Рассчитать кредит

Лицензированное агентство NESTIN PROPERTY предоставляет весь спектр услуг по продаже и аренде на рынке недвижимости в Турции. Ипотечное кредитование – один из популярных способов инвестирования в турецкую недвижимость среди иностранных граждан. Выверенный подход к каждому шагу определяет успех оформления ипотеки и её выгоды для покупателя.
Специалисты нашей компании готовы предоставить Вам профессиональную помощь в получении кредита на покупку жилья: консультации и выбор лучшего банка, сбор документов, полное сопровождение на всех этапах оформления ипотеки и сделки купли-продажи.
Получить подробную информацию
Заполните форму и мы предоставим Вам всю необходимую информацию
Похожие объекты

Мы подготовим для вас подборку лучших предложений от застройщиков Аланьи и Антальи по вашим персональным запросам
