Введите код с картинки
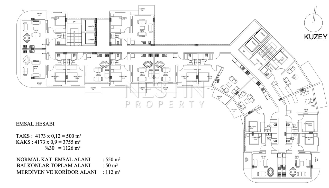
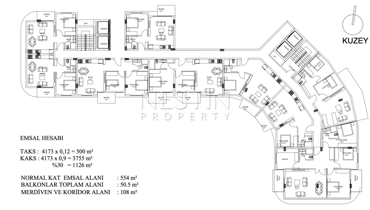
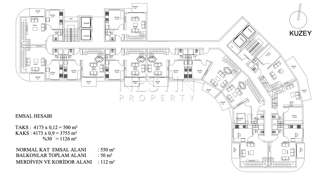
К продаже представлен новый проект на стадии строительства в городе Газипаша, который состоит из 1 шестиэтажного блока, в 800 м от Средиземного моря. На территории будет открытый бассейн, детская площадка, фитнес, парковка, зеленый сад, зоны отдыха.
Квартиры предлагаются с чистовой отделкой и в следующих планировках:
Окончание строительства весна.2024 г.
Застройщик предлагает удобную систему расчетов. За более детальной информацией, обращайтесь к нашим менеджерам.
Газипаша – это один из самых экологически чистых районов Аланьи, который имеет очень высокий инвестиционный потенциал. На данный момент городок стремительно развивается, мэрия утвердила масштабный план развития на ближайшие несколько лет, согласно которому Газипаша превратится в одно из самых комфортных для жизни и отдыха мест на Анталийском побережье. Уже сейчас начато расширение аэропорта, стартовало строительство отеля Rixos, строится пристань для стоянки яхт и парома, который будет соединять Турцию и Северный Кипр, разбиваются парковые зоны вдоль реки. Все ведущие застройщики Аланьи уже выкупили земли и начали активное строительство современных комплексов. Газипаша очень скоро станет элитным курортом, и, как следствие, цены на недвижимость будут также стремительно расти.
Рассчитать кредит

Лицензированное агентство NESTIN PROPERTY предоставляет весь спектр услуг по продаже и аренде на рынке недвижимости в Турции. Ипотечное кредитование – один из популярных способов инвестирования в турецкую недвижимость среди иностранных граждан. Выверенный подход к каждому шагу определяет успех оформления ипотеки и её выгоды для покупателя.
Специалисты нашей компании готовы предоставить Вам профессиональную помощь в получении кредита на покупку жилья: консультации и выбор лучшего банка, сбор документов, полное сопровождение на всех этапах оформления ипотеки и сделки купли-продажи.
Получить подробную информацию
Заполните форму и мы предоставим Вам всю необходимую информацию
Рассрочка
0% до конца строительства
Похожие объекты

Мы подготовим для вас подборку лучших предложений от застройщиков Аланьи и Антальи по вашим персональным запросам
